Duplex
€ 335.000

Blandenstraat 179 B11, 3053 Haasrode
    • delen
Dit pand maakt deel uit van Blandenstraat 179

Omschrijving Ref.: 7668147

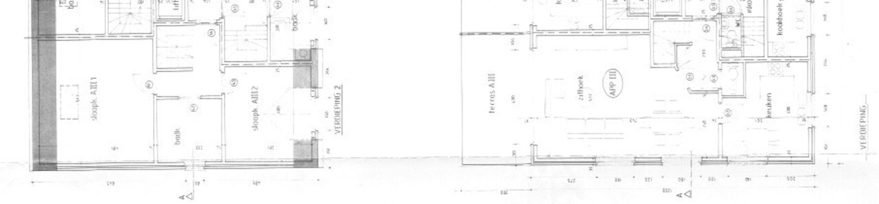
Duplex 2-slaapkamer app Haasrode


**7 appartementen te Haasrode**

Haasrode, een deelgemeente van Oud-Heverlee, staat gekend om zijn centrale maar uiterst rustige ligging. Uitvalswegen zoals E314, E40 ... het Researchpark Haasrode en tal van andere faciliteiten zijn gelegen op slechts enkele minuten afstand, net zoals tal van groenvoorzieningen (het Meerdaalwoud, Heverleebos, Mollendaalbos en de Zoete Waters).

Dit opbrengsteigendom bestaat uit 7 entiteiten, variërende van studio's tot duplexappartementen met één of twee slaapkamers. De units dewelke gelegen zijn aan de achterzijde van het gebouw kunnen vanop de privatieve terrassen genieten van het prachtige, groene verzicht. Bijkomend werd er voor iedere unit een kelderberging voorzien en een autostaanplaats kan exclusief de vraagprijs bijkomend aangekocht worden.

Wens je meer informatie of een bezoek ter plaatse? Dat kan ! Contacteer onze Expert Investeringsvastgoed: Jacky 0495 53 46 49 of jacky@connect-immo.be

EPC:
Bus 1: 525 kWh/(m²jaar) - 2917624
Bus 2: 490 kWh/(m²jaar) - 2917590
Bus 3: 524 kWh/(m²jaar) - 2917797
Bus 11: 300 kWh/(m²jaar) - 2917833
Bus 12: 239 kWh/(m²jaar) - 2917861
Bus 13: 277 kWh/(m²jaar) - 2917870
Bus 14: 291 kWh/(m²jaar) - 2917811


Uw contact

Vragen over deze eigendom ref: 7668147
contact

Details van het pand

Financieel

Prijs
€ 335.000,00
Onder BTW stelsel
Nee
Beschikbaarheid
Mits inachtneming huurders
Opbrengsteigendom
Ja

Ligging

Buurt
Rustig, centraal
School nabij
Ja
Winkels nabij
Ja
Openbaar vervoer nabij
Ja
Autosnelweg nabij
Ja

Gebouw

Bewoonbare oppervlakte
120,00 m²
Aantal gevels
4
Staat
Goede staat
Verdiep
1
Aantal verdiepingen
2

Terrein

Grondoppervlakte
3.740,00 m²
Tuin
Nee

Parkeermogelijkheden

Garage
8
Parkings buiten
Nee
Parkings binnen
8

Indeling

Keuken
Ja
Badkamer type
Alle comfort
Terras
12,00 m²

Comfort

Gemeubeld
Nee
Lift
Ja

Energie

EPC
300 kWh/m²/jaar
EPC unieke code
20230613-0002917833-RES-1
Dubbele beglazing
Ja
Type verwarming
Elektrisch

Technieken

Elektriciteit
Ja
Telefoonbekabeling
Ja
Gas
Ja
Water
Ja

Stedenbouw

Bestemming
Niet meegedeeld
Bouwvergunning
Ja
Verkavelingsvergunning
Nee
Voorkooprecht
Nee
Renovatieverplichting
Nee
Dagvaarding
Nee
G-score
A
P-score
A
Vonnissen
Nee
Kadaster sectie
C
Kadaster nummer
C22/00S3

Meer info over deze eigendom

Bedankt voor je bericht, we contacteren je zo spoedig mogelijk.
Er was een probleem bij het versturen van het formulier, gelieve opnieuw te proberen.
(*) Gelieve de verplichte velden in te vullen.